Go Back

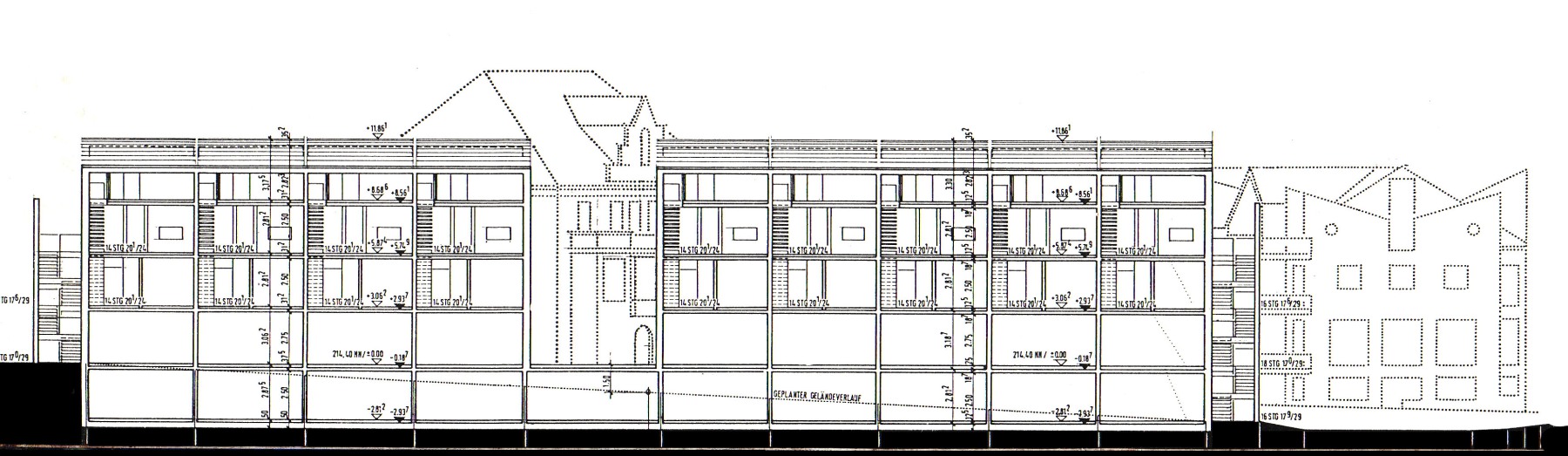
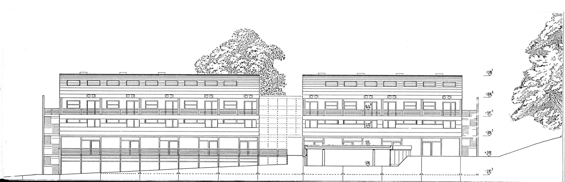
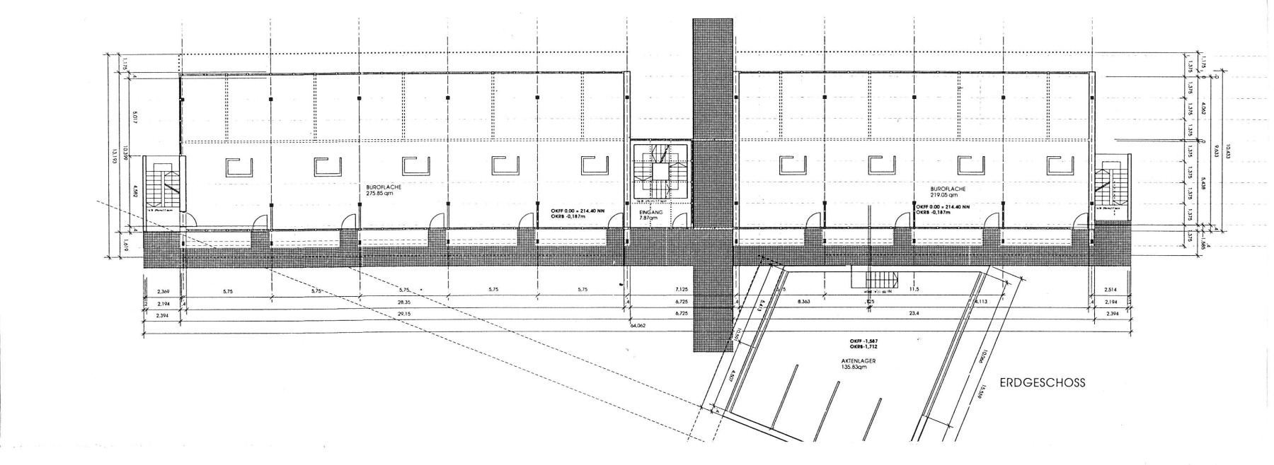
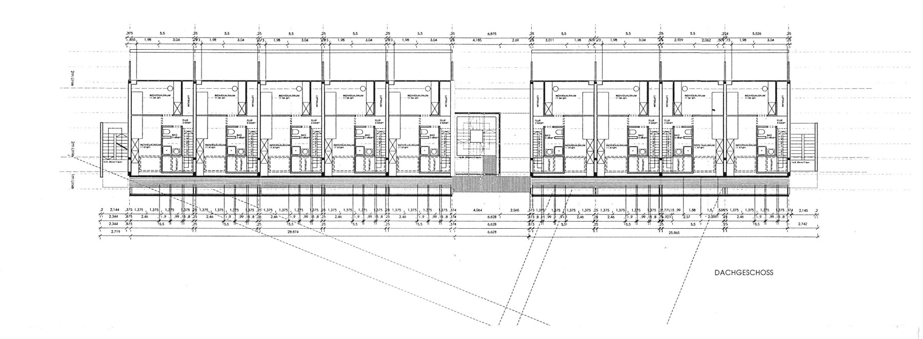
Gefördertes Mietwohnungs und Geschäftshaus

1998

Aachen