Go Back

Erweiterung Stadtmuseum

1996

Berlin

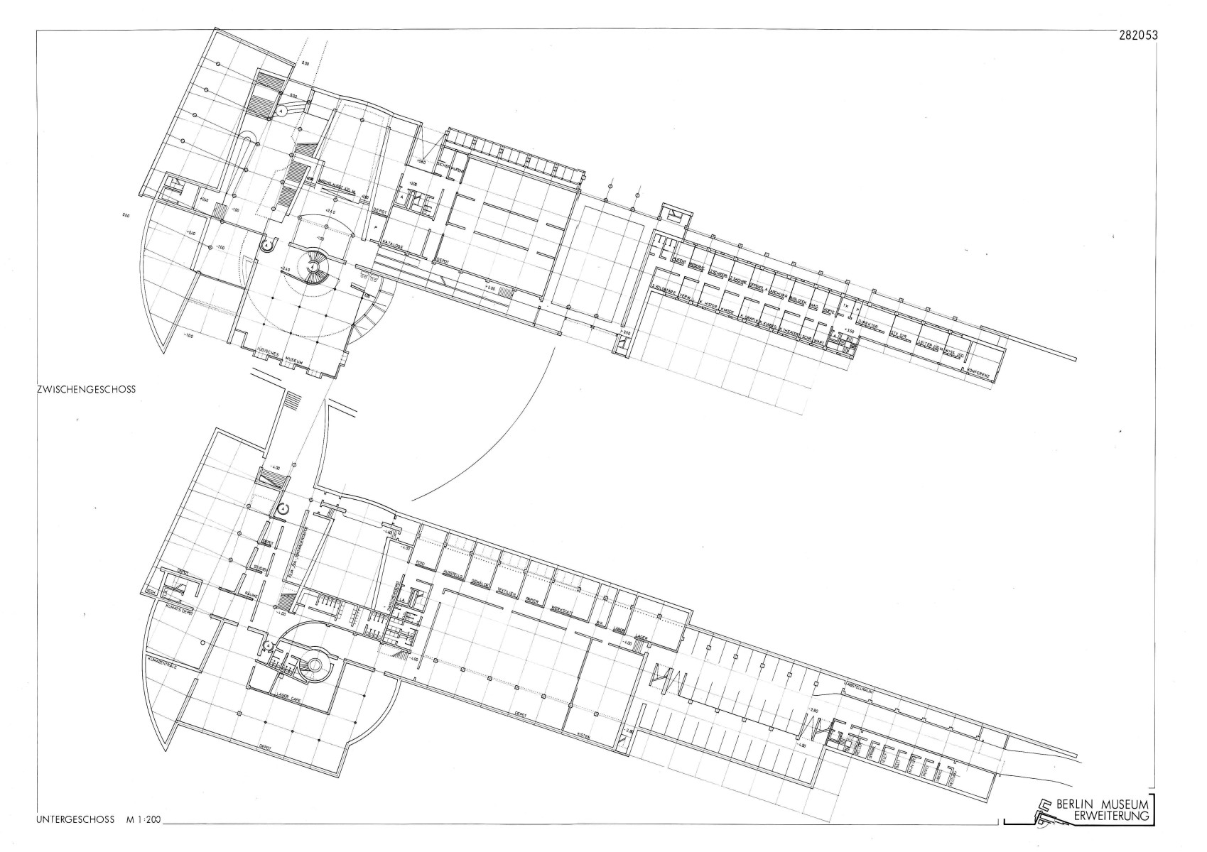
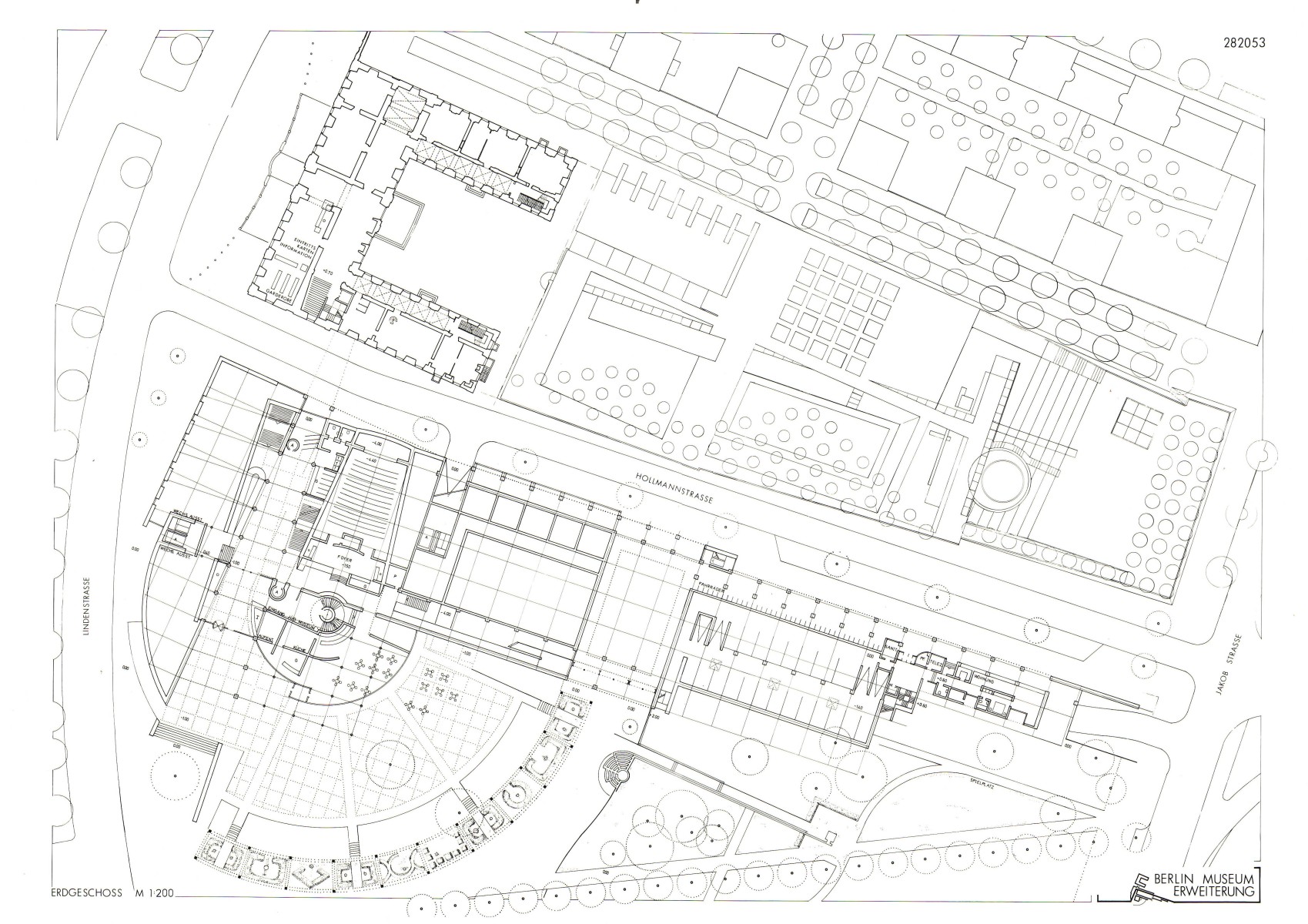
Wie die folgenden Pläne vor Augen führen, bemühte sich der Verfasser

hier in dem gegeben Grundstück alte städtebauliche Strukturen

und Wegeführungen erneut aufzugreifen und den zerrissenen Nachkriegsbebauungen

entgegenzusetzen und dadurch den städtischen Raum neu zu gliedern.

Inhaltliche Aspekte, w,z,B, die bauliche Betonung der jüdischen Abteilung

mußten genauso in das Konzept eingefügt werden, wie die sinnvolle Erschliessung

der Wegeführung unter besonderer Berücksichtigung von Grünanlagen

und Kinderspielplätzen.