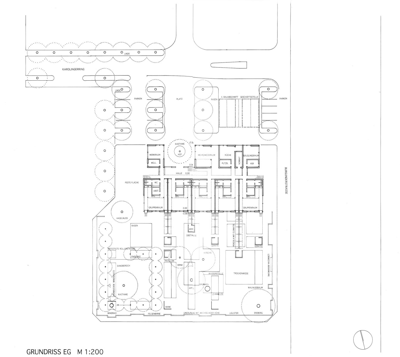
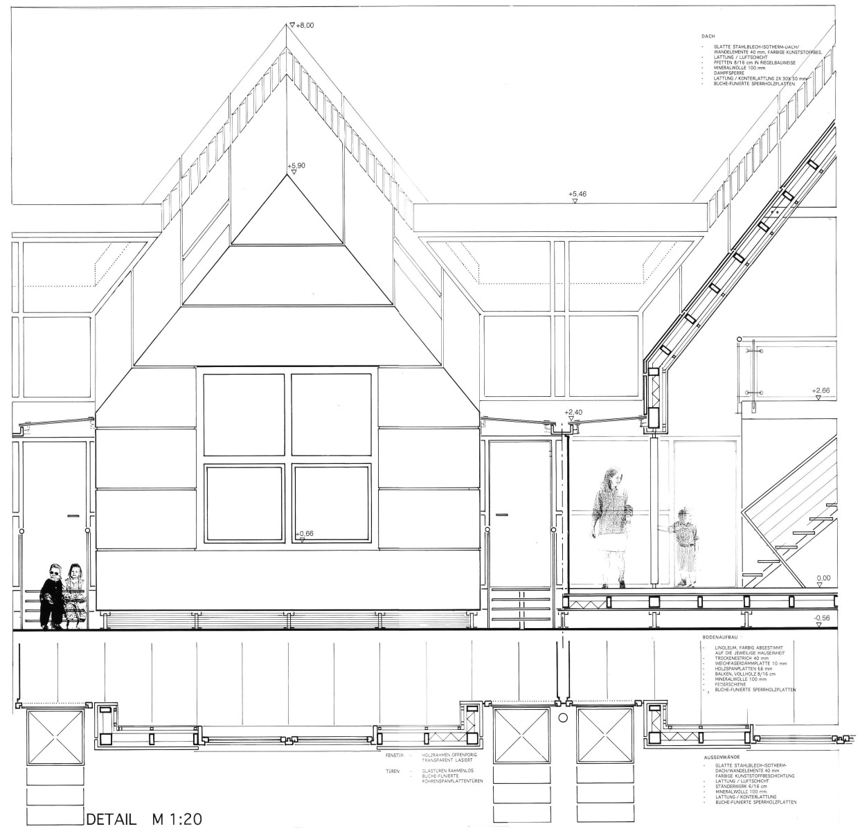
Go Back

Johanniter Kindergarten

1995

Erkelenz