Go Back

Bremen Überseestadt Mobilitätshaus

2018

Bremen

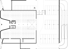
Städtebauliche Einbindung:

  • markanter Haupteingang von der Konsul-Smidt-Straße mit einem in das Gebäude

sich erstreckenden Platz, als Vorbereich mit Aufenthaltsqualität, um die Adressbildung zu unterstützen

– Erschließung der Garage und der Tankstelle von der seitlich angeordneten Erschließungsschlaufe

– Mittelspannungsstation im hinteren Bereich des Grundstücks

– Anordnung der Erschließungsrampen im hinteren Teil des Grundstücks

Flexibilität des Parkkonzeptes

– Die stützenfreie Ausführung der Anlage ermöglicht eine der Nachfrage (unddem

Komfortanspruch) angepasste Markierung der Stellplatzbreiten

– Einzelne Ebenen können z.B. für Autonom fahrende Fahrzeuge ausgewiesen werden

und damit effektiver genutzt werden (kein Türen.ffnen mehr erforderlich).

– Komfortstellplatz für mobilitätseingeschränkte Menschen und Eltern mit Kindern sind

möglich

– Stellplatzmarkierungen können mit Farbe (Striche oder Flächig) oder über im Boden

eingelassene LED-Bänder, die unterschiedlich angesteuert werden, möglicherweise

auch über Projektion von der Decke aus, dargestellt werden.

– Die automatische Kennzeichenerkennung ermöglicht die bedienerlose Abwicklung

der Zufahrten zum Parkhaus. Schranken werden bei berechtigten Fahrzeugen

automatisch geöffnet

Fassade

– Ziegelsteinfassade mittels einer an der ETH Zürich entwickelten Methode mit geklebtem Mauerwerk

– Durch Verschiebung und leichter Verdrehung einzelnen Ziegelsteine wird ein weich

anmutendes Muster erzeugt, das seine Wirkung je nach Betrachtungsposition und Sonnenstand ändert

– Der Ziegelsteinfassade liegt eine Elementierung zugrunde, die sich aus nur zwei Ebenen und einem gebogenen Grundtyp zusammensetzt. Dadurch wird eine hohe Stückzahl identischer Elemente erzielt, die sich kostengünstig industriell vorfertigen lassen

– Das Ziegelstein-Muster wiederum lässt sich aus nur zwei Geometrievarianten erzeugen. Dies ermöglicht es, das Mauerwerk mittels einer ‚Lehre‘ zu fertigen. Auf eine kostenintensivere roboter-gestützte Fertigung kann verzichtet werden

– Die Stahleinfassung der ‚Panoramafenster‘ wird gleichzeitig für den Lastabtrag der untersten Ziegellage genutzt und bildet rückseitig eine umlaufende Unterkonstruktion der Fassadenelemente. Diese ermöglicht die standardisierte Befestigung der Elemente am Deckenrand über höhenjustierbare Stahlkonsolen

– Durch die kontinuierlich linear gelagerten Ziegelsteine reduzieren sich auftretende Querkräfte in den Fugen, welche eine offene Struktur mit maximal freiem Querschnitt ermöglicht

– Die Übergänge zwischen einzelnen Elementen werden über Lochsteine erzeugt, die nach Einhängen der Fassadenelemente eingesetzt werden und ein homogenes Maurerwerk zu bilden

– Materialeffiziente Bauweise, kombiniert mit Vorfertigung großflächiger Fassadenelemente

– Vorteile der Qualitätskontrollen bei vorgefertigten Bauteilen

– Hoher Vorfertigungsgrad = Beschleunigung des Bauablaufs und damit Verkehrsentlastung (Stadtraum) während der Bauphase

– Geklebtes Mauerwerk, zementfrei