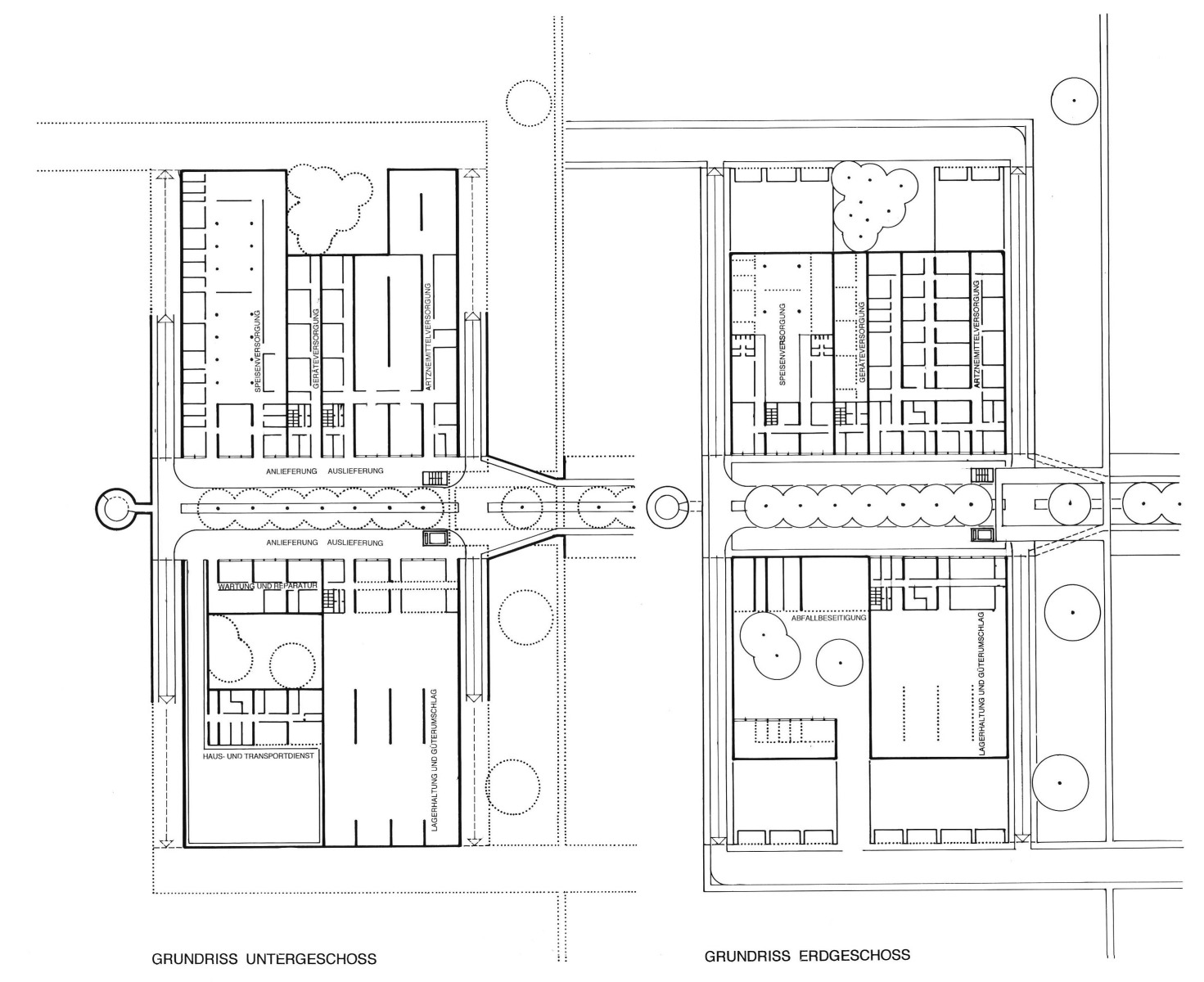
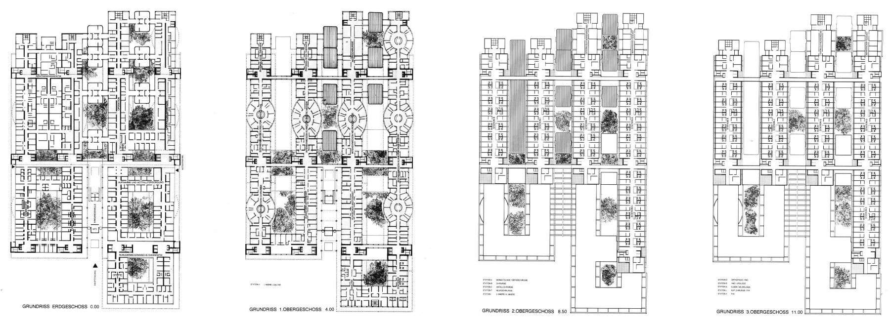
Go Back

Berlin Klinikum Buch

1995

Berlin